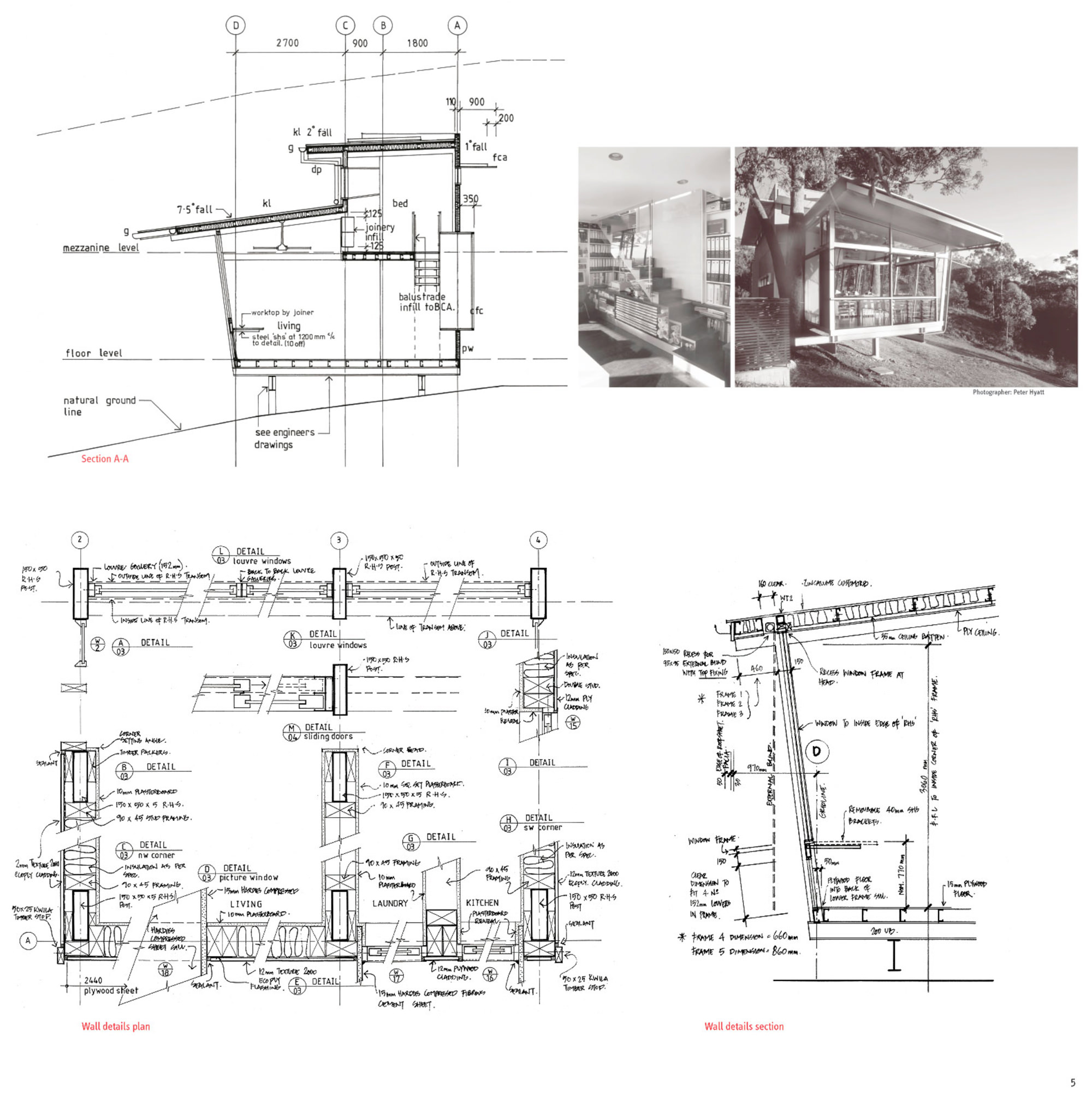
At every junction, glass surfaces are juxtaposed cleanly with steel, aluminium, timber and plywood, giving a clear honest expression of the materials and a legible structure.
 
		



At every junction, glass surfaces are juxtaposed cleanly with steel, aluminium, timber and plywood, giving a clear honest expression of the materials and a legible structure.